A Nature-Integrated Boutique Resort
Designing for Slow Living
Monolithic architectural expression defined by textured plaster and layered landscape.
Images by Studio OBRYN
The exterior architecture is expressed through solid, low-rise volumes finished in clay-based textured plaster. The material provides depth, softness, and thermal mass, allowing the building to visually recede into its natural surroundings. Stone paving extends from the landscape into the built threshold, reinforcing continuity between exterior ground planes and interior circulation while slowing the arrival experience.
Courtyard space shaping light, ventilation, and spatial orientation.
Images by Studio OBRYN
The courtyard introduces daylight deep into the plan while acting as a climatic moderator for surrounding interiors. Natural planting softens the stone-paved surface, while enclosing plastered walls reflect diffused light into adjacent lobbies. The courtyard establishes visual relief within the architectural sequence and enhances user orientation through constant reference to an open sky condition.
Reception interior defined by material continuity and controlled lighting.
Images by Studio OBRYN
The reception space maintains a restrained material palette of plastered walls, stone flooring, and timber detailing. The reception desk is treated as a solid architectural element rather than a furniture object, reinforcing permanence and clarity. Indirect lighting enhances surface texture and reduces glare, supporting calm visual engagement during arrival and check-in.
Informal lounge articulated through tactile materials and relaxed seating.
Images by Studio OBRYN
The informal lounge is designed as a low-stimulation interior with emphasis on material tactility and acoustic comfort. Timber-framed seating, upholstered surfaces, and textured walls create a balanced sensory environment suitable for short-duration occupancy. Lighting remains subdued and layered, allowing material finishes to define the space rather than decorative elements.
Transitional lobby interiors shaped by horizontal proportions and soft illumination.
Images by Studio OBRYN
The lobby spaces operate as architectural buffers between public and private zones. Extended ceiling planes and continuous wall finishes create horizontal emphasis, encouraging slow movement. Concealed lighting integrated along junctions enhances material depth while maintaining visual calm, ensuring these spaces function as connectors rather than destinations.
Guest room interior composed through material restraint and spatial clarity.
Images by Studio OBRYN
The guest room is organized around a deep bed-back niche that anchors the interior composition. The niche is formed as a thickened wall element finished in textured plaster, creating a sense of enclosure and acoustic comfort around the sleeping zone. Integrated planting within the niche introduces a controlled natural element into the interior, softening the solid surface and improving visual comfort. Indirect lighting concealed along the niche edges enhances depth and material texture, while timber flooring and built-in furniture maintain a restrained, tactile palette. Together, the niche and planting establish a calm focal point that reinforces the room’s relationship with nature without compromising privacy or spatial clarity.
Vanity and bathroom spaces unified through material continuity and indirect light.
Images by Studio OBRYN
The vanity and bathroom are conceived as a single spatial sequence with consistent material treatment. Stone counters, textured plaster surfaces, and concealed lighting establish functional clarity while maintaining a spa-like atmosphere. Wall-mounted fixtures and recessed storage improve ease of maintenance and reinforce visual order within the interior.
Swimming pool environment shaped by stone surfaces and architectural enclosure.
Images by Studio OBRYN
The pool area is defined by stone paving and enclosing architectural volumes that frame water as a reflective surface. Timber furniture elements and soft landscaping moderate the hardness of stone finishes, ensuring thermal comfort and usability. The spatial enclosure enhances privacy while maintaining visual openness toward shared leisure zones.
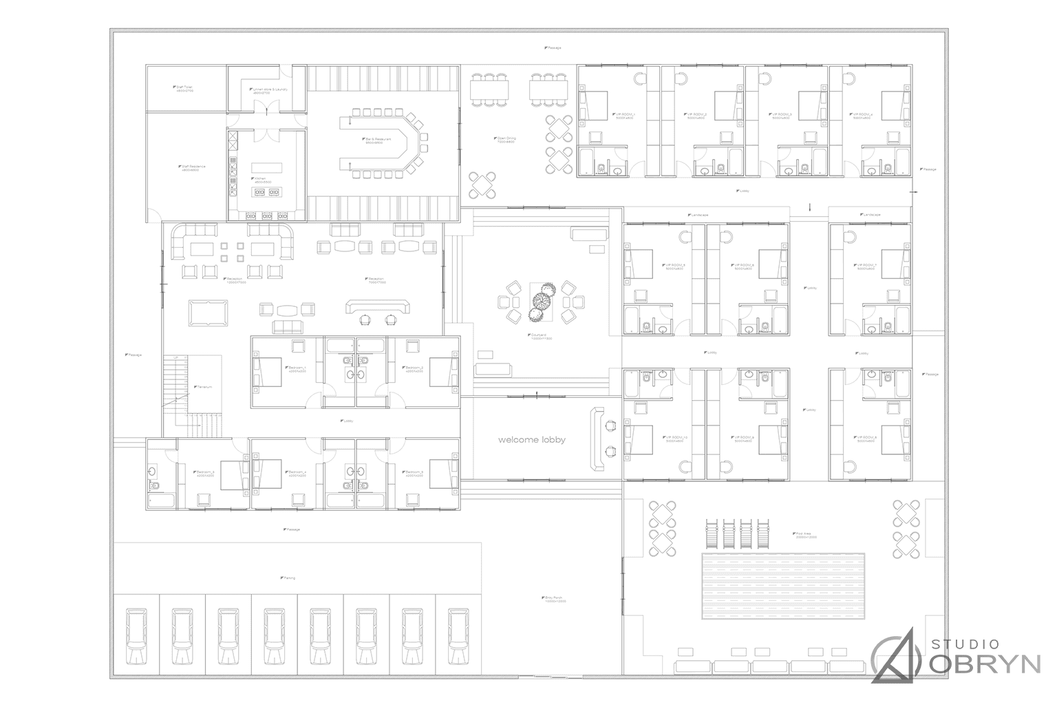
Night-time architectural expression and plan revealing spatial hierarchy and restraint.
Images by Studio OBRYN
At night, the architecture is revealed through warm, recessed lighting integrated within wall junctions and shaded edges. Light accentuates material texture rather than form, maintaining visual calm. The plan reinforces this restraint through clear zoning, with public spaces, courtyard, and accommodation organized into a legible sequence that prioritizes comfort, orientation, and controlled movement.
Project Type: Boutique Hospitality
Location: India
Status: Concept Proposal
Area: 2100 Sqm
Year: 2025
Author: Yash Soni (Founder- Studio OBRYN)












